1/2
Dům 99
Dům 99
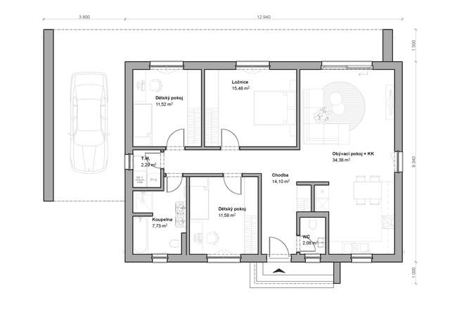
Dům 99 je moderní přízemní bungalov, který na 99 m² nabízí promyšlené a praktické bydlení. Součástí domu je přístřešek pro automobil a prostorná terasa, která rozšiřuje obytný prostor a vytváří příjemné místo pro relaxaci. Díky efektivnímu dispozičnímu řešení poskytuje dům pohodlí i dostatek soukromí, zatímco moderní styl dodává interiéru i exteriéru nadčasový vzhled.

- Tepelné čerpadlo Panasonic v ceně domu na klíč
- Konstrukce krovu a hranolů stěn z lepeného dřeva
- Dvojité opláštění stěn
- V případě dodávky základové desky vysoká ochrana hydroizolace
- Nadstandardní výbava v základní ceně
Dispozice4+kk
Zastavěná plocha120 m²
Podlahová plocha99 m²
Počet pater1
Cena domu od
3 425 859 Kč s DPH


Zalíbil se Vám tento dům?
Pomůžeme se vším, od projektu až po předání
Kontaktujte nás
Máte projekt, studii nebo jen představu o domově?
Napište nám, rádi se s vámi spojíme.
