1/2
Dům 78
Dům 78
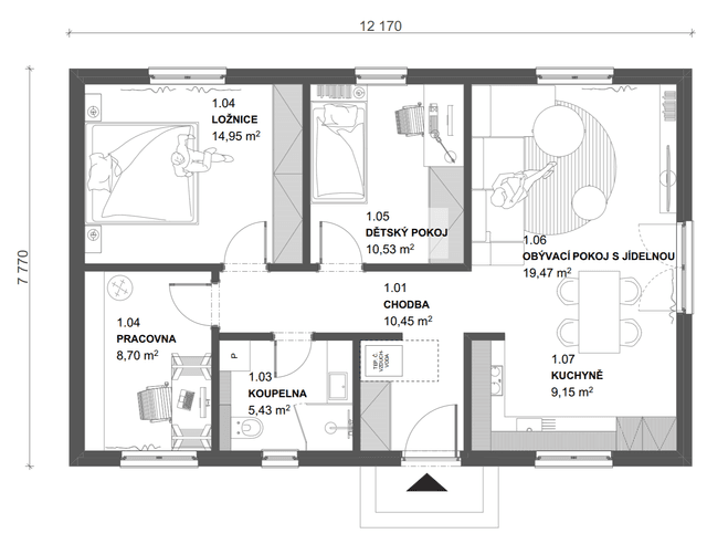
Dům 78 je promyšlený bungalov, který na 78 m² podlahové plochy nabízí komfortní a funkční bydlení. Tři samostatné pokoje lze využít jako ložnici, pracovnu, dětský či hostinský pokoj, takže se dokonale přizpůsobí potřebám každé rodiny. Prostorná kuchyně o téměř 10 m² plynule navazuje na obývací pokoj, který svou dvojnásobnou velikostí poskytuje dostatek místa pro společné chvíle i relaxaci. Praktické uspořádání a vzdušnost interiéru dělají z tohoto domu ideální domov pro pohodlné bydlení.

- Tepelné čerpadlo Panasonic v ceně domu na klíč
- Konstrukce krovu a hranolů stěn z lepeného dřeva
- Dvojité opláštění stěn
- V případě dodávky základové desky vysoká ochrana hydroizolace
- Nadstandardní výbava v základní ceně
Dispozice4+kk
Zastavěná plocha94.56 m²
Podlahová plocha78.66 m²
Počet pater1
Cena domu od
2 563 134 Kč s DPH


Zalíbil se Vám tento dům?
Pomůžeme se vším, od projektu až po předání
Kontaktujte nás
Máte projekt, studii nebo jen představu o domově?
Napište nám, rádi se s vámi spojíme.
