1/2
Dům 62
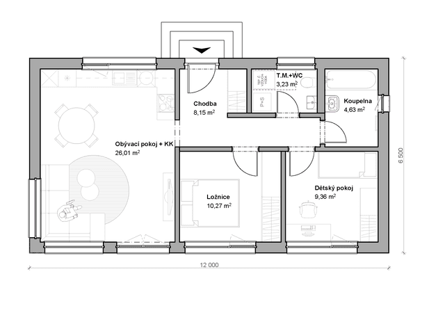
Dům 62
Dům 62 je skvělou volbou pro ty, kteří hledají útulné a úsporné bydlení na menším stavebním pozemku. Na 62 m² nabízí prakticky řešený prostor. Obývací pokoj s kuchyňským koutem, dva samostatné pokoje a sociální zařízení. Díky pultové střeše získává tento bungalov moderní a elegantní vzhled, který zároveň přispívá k efektivnímu využití vnitřního prostoru.

- Tepelné čerpadlo Panasonic v ceně domu na klíč
- Konstrukce krovu a hranolů stěn z lepeného dřeva
- Dvojité opláštění stěn
- V případě dodávky základové desky vysoká ochrana hydroizolace
- Nadstandardní výbava v základní ceně
Dispozice3+kk
Zastavěná plocha78 m²
Podlahová plocha62 m²
Počet pater1
Cena domu od
2 120 440 Kč s DPH


Zalíbil se Vám tento dům?
Pomůžeme se vším, od projektu až po předání
Kontaktujte nás
Máte projekt, studii nebo jen představu o domově?
Napište nám, rádi se s vámi spojíme.
