1/2
Dům 60
Dům 60
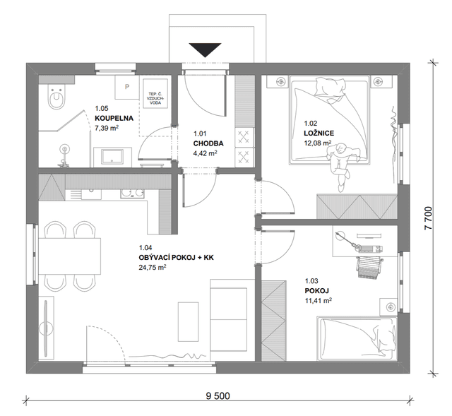
Dům 60 je ideální volbou pro ty, kteří hledají útulné, přitom funkční bydlení na menším stavebním pozemku. Bungalov s podlahovou plochou 60 m² splňuje požadavky na chytré využití každého centimetru. Díky promyšlené dispozici poskytuje dostatek komfortu, aniž by zabíral zbytečně mnoho místa. Skvělá alternativa pro investory i jednotlivce, kteří preferují menší stavbu v kvalitě a pohodlí.

- Tepelné čerpadlo Panasonic v ceně domu na klíč
- Konstrukce krovu a hranolů stěn z lepeného dřeva
- Dvojité opláštění stěn
- V případě dodávky základové desky vysoká ochrana hydroizolace
- Nadstandardní výbava v základní ceně
Dispozice3+kk
Zastavěná plocha73.15 m²
Podlahová plocha60.07 m²
Počet pater1
Cena domu od
2 252 869 Kč s DPH


Zalíbil se Vám tento dům?
Pomůžeme se vším, od projektu až po předání
Kontaktujte nás
Máte projekt, studii nebo jen představu o domově?
Napište nám, rádi se s vámi spojíme.
