1/2
Dům 160
Dům 160
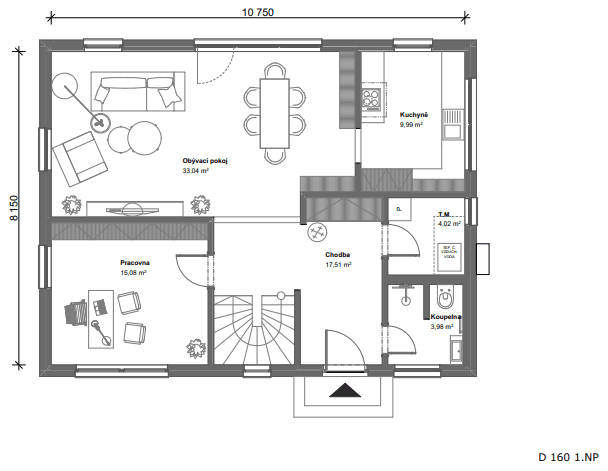
Dům 160 poskytuje dostatek místa nejen pro rodinu, ale i pro pracovnu nebo pokoj pro hosty. Už při vstupu vás přivítá prostorná chodba se schodištěm, která navozuje pocit vzdušnosti. Dům nabízí čtyři pokoje s obytnou plochou od 16 m², obývací pokoj s jídelnou o rozloze 33 m², oddělenou kuchyň na 10 m² a dvě samostatné koupelny s toaletou. V přízemí nechybí ani technická místnost. Díky promyšlenému uspořádání zde každý člen rodiny i návštěvy najdou dostatek prostoru a soukromí.

- Tepelné čerpadlo Panasonic v ceně domu na klíč
- Konstrukce krovu a hranolů stěn z lepeného dřeva
- Dvojité opláštění stěn
- V případě dodávky základové desky vysoká ochrana hydroizolace
- Nadstandardní výbava v základní ceně
Dispozice5+1
Zastavěná plocha99.3 m²
Podlahová plocha159.36 m²
Počet pater2
Cena domu od
3 607 024 Kč s DPH


Zalíbil se Vám tento dům?
Pomůžeme se vším, od projektu až po předání
Kontaktujte nás
Máte projekt, studii nebo jen představu o domově?
Napište nám, rádi se s vámi spojíme.
