1/1
Dům 148SV
Dům 148SV
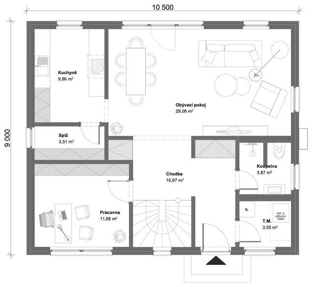
Dům 148SV poskytuje komfort až pro šestičlennou rodinu. Na zastavěné ploše 95 m² nabízí promyšlenou dispozici 6+kk, kde každý člen domácnosti najde svůj vlastní prostor, aniž by se ztratil pocit společného domova. Moderní řešení využívá každý centimetr. Nabízí dostatek soukromí i velkorysý prostor pro společné chvíle. Praktické uspořádání a vzdušnost interiéru dělají z tohoto domu ideální místo pro pohodový rodinný život.

- Tepelné čerpadlo Panasonic v ceně domu na klíč
- Konstrukce krovu a hranolů stěn z lepeného dřeva
- Dvojité opláštění stěn
- V případě dodávky základové desky vysoká ochrana hydroizolace
- Nadstandardní výbava v základní ceně
Dispozice6+kk
Zastavěná plocha95 m²
Podlahová plocha147.8 m²
Počet pater2
Cena domu od
3 913 520 Kč s DPH

Zalíbil se Vám tento dům?
Pomůžeme se vším, od projektu až po předání
Kontaktujte nás
Máte projekt, studii nebo jen představu o domově?
Napište nám, rádi se s vámi spojíme.
