1/2
Dům 125
Dům 125
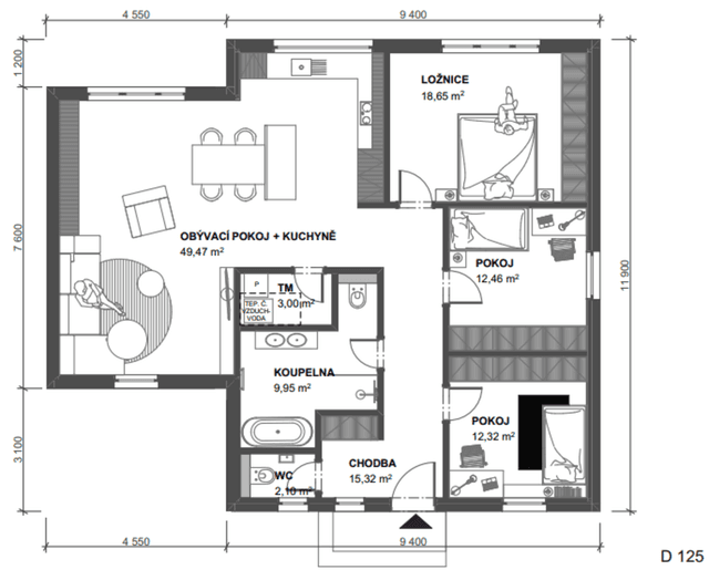
Dům 125 je moderně pojatý přízemní dům, který nabízí komfortní bydlení i pro početnější rodinu. Obývací pokoj je vysunut směrem do zahrady, čímž vzniká prostor pro parkování na jedné straně a útulné zákoutí pro terasu na straně druhé. Díky tomuto řešení nabízí obývací a jídelní část téměř 50 m². Dlouhá chodba odděluje koupelnu a technické zázemí od tří pokojů a přirozené denní světlo do ní proudí oknem ze zádveří.

- Tepelné čerpadlo Panasonic v ceně domu na klíč
- Konstrukce krovu a hranolů stěn z lepeného dřeva
- Dvojité opláštění stěn
- V případě dodávky základové desky vysoká ochrana hydroizolace
- Nadstandardní výbava v základní ceně
Dispozice4+kk
Zastavěná plocha146.44 m²
Podlahová plocha124.72 m²
Počet pater1
Cena domu od
5 455 212 Kč s DPH


Zalíbil se Vám tento dům?
Pomůžeme se vším, od projektu až po předání
Kontaktujte nás
Máte projekt, studii nebo jen představu o domově?
Napište nám, rádi se s vámi spojíme.
