1/1
Dům 119
Dům 119
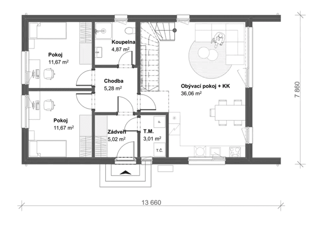
Rodinný dům 119 s podkrovím a terasou spojuje tradiční prvky s moderním designem, aby vytvořil harmonické a stylové bydlení pro celou rodinu. Na zastavěné ploše 108 m² se rozprostírá velkorysý obývací prostor s kuchyňským koutem, který plynule navazuje na schodiště. Dům nabízí dva samostatné pokoje, ložnici, otevřenou pracovnu, technickou místnost, šatnu a dvě koupelny. Sedlová střecha dodává domu klasický vzhled, zatímco moderní dispozice zajišťuje funkčnost a pohodlí pro každodenní život.

- Tepelné čerpadlo Panasonic v ceně domu na klíč
- Konstrukce krovu a hranolů stěn z lepeného dřeva
- Dvojité opláštění stěn
- V případě dodávky základové desky vysoká ochrana hydroizolace
- Nadstandardní výbava v základní ceně
Dispozice4+kk
Zastavěná plocha108 m²
Podlahová plocha119.15 m²
Počet pater2
Cena domu od
3 946 884 Kč s DPH

Zalíbil se Vám tento dům?
Pomůžeme se vším, od projektu až po předání
Kontaktujte nás
Máte projekt, studii nebo jen představu o domově?
Napište nám, rádi se s vámi spojíme.
