1/2
Dům 115
Dům 115
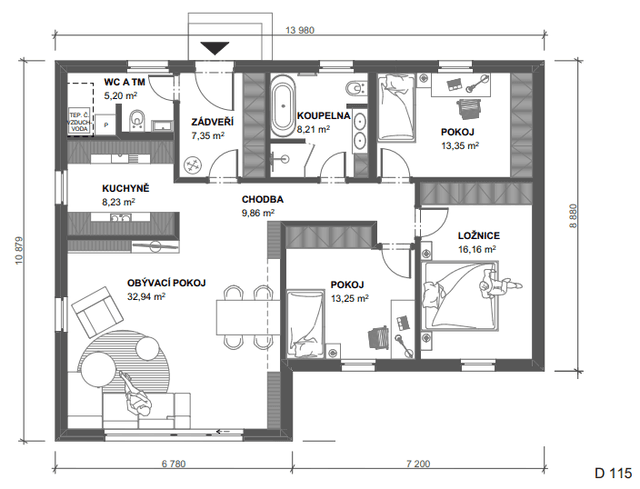
Dům 115 je chytře navržený bungalov, který poskytuje komfortní a praktické bydlení pro mladou rodinu. Na více než 100 m² podlahové plochy najdete dva prostorné samostatné pokoje, ložnici a obývací pokoj se čtvercovým půdorysem, kde je kuchyně vizuálně oddělena pro větší pohodlí. Koupelna pojme toaletu, vanu i sprchový kout, další samostatnou toaletu umístěnou u technické místnosti ocení rodina i návštěvy. Promyšlené řešení, které spojuje funkčnost s příjemnou atmosférou domova.

- Tepelné čerpadlo Panasonic v ceně domu na klíč
- Konstrukce krovu a hranolů stěn z lepeného dřeva
- Dvojité opláštění stěn
- V případě dodávky základové desky vysoká ochrana hydroizolace
- Nadstandardní výbava v základní ceně
Dispozice4+kk
Zastavěná plocha144 m²
Podlahová plocha115 m²
Počet pater1
Cena domu od
3 269 954 Kč s DPH


Zalíbil se Vám tento dům?
Pomůžeme se vším, od projektu až po předání
Kontaktujte nás
Máte projekt, studii nebo jen představu o domově?
Napište nám, rádi se s vámi spojíme.
