1/2
Dům 110
Dům 110
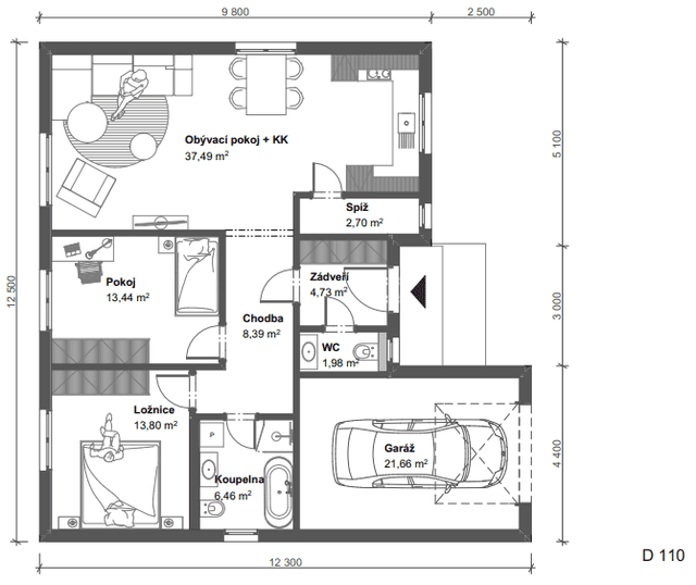
Dům 110 je přízemní rodinný bungalov s krytým vstupem a garáží pro osobní auto. Díky bezbariérové dispozici je dům ideální volbou pro seniory, kteří chtějí pohodlné a bezpečné bydlení, ale zároveň nabízí dostatek místa pro návštěvy vnoučat či mladé rodiny. Samostatná místnost o rozloze 13,5 m² může sloužit jako pracovna, dětský pokoj, dílna nebo relaxační prostor. Obývací pokoj propojený s kuchyňským koutem a spižírnou vytváří přirozené centrum domova, kde se každý cítí součástí dění.

- Tepelné čerpadlo Panasonic v ceně domu na klíč
- Konstrukce krovu a hranolů stěn z lepeného dřeva
- Dvojité opláštění stěn
- V případě dodávky základové desky vysoká ochrana hydroizolace
- Nadstandardní výbava v základní ceně
Dispozice3+kk
Zastavěná plocha141 m²
Podlahová plocha110 m²
Počet pater1
Cena domu od
3 371 741 Kč s DPH


Zalíbil se Vám tento dům?
Pomůžeme se vším, od projektu až po předání
Kontaktujte nás
Máte projekt, studii nebo jen představu o domově?
Napište nám, rádi se s vámi spojíme.
