Vzorový dům ALLSTAV 1
Vzorový dům ALLSTAV 2
1/2

Dům 88

Dům 88

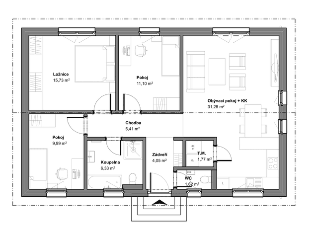
Dům 88 je přízemní rodinný dům pro čtyřčlennou rodinu. Už při vstupu vás přivítá prostorná chodba s vestavěnou šatní skříní, která přirozeně rozděluje dům na klidovou a společenskou část. Levá část domu nabízí tři samostatné pokoje, zatímco vpravo se otevírá jídelna s krásným průhledem do zahrady. Obývací pokoj s kuchyňským koutem o rozloze 32 m² poskytuje dostatek prostoru pro rodinný život bez omezení.

Půdorys domu
  • Tepelné čerpadlo Panasonic v ceně domu na klíč
  • Konstrukce krovu a hranolů stěn z lepeného dřeva
  • Dvojité opláštění stěn
  • V případě dodávky základové desky vysoká ochrana hydroizolace
  • Nadstandardní výbava v základní ceně
Dispozice4+kk
Zastavěná plocha104.73 m²
Podlahová plocha88.11 m²
Počet pater1
Cena domu od
2 795 245 Kč s DPH
Dům 1
Dům 2
Zalíbil se Vám tento dům?

Pomůžeme se vším, od projektu až po předání

Kontaktujte nás

Máte projekt, studii nebo jen představu o domově?
Napište nám, rádi se s vámi spojíme.

Allstav logo

Sledujte ALLSTAV na Facebooku a Instagramu